Menekşe Sokak Yol Orta Çiçeklendirme Çalışması
Park Bahçeler Müdürlüğü  26.10.2022  00:00

Menekşe Sokak Yol Orta Çiçeklendirme Çalışması

Kurtuluş Parkı, Park Revizyon Çalışması
Park Bahçeler Müdürlüğü  23.10.2022  04:04

Kurtuluş Parkı, Park Revizyon Çalışması

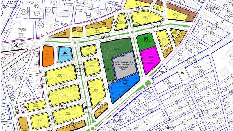
Hürriyet Mahallesi İmar Revizyon Çalışması-23-25-28 Adalar
İmar Ve Şehircilik Müdürlüğü  23.10.2022  16:05

Hürriyet Mahallesi İmar Revizyon Çalışması-23-25-28 Adalar

Cumhuriyet Parkı Yapımı
Park Bahçeler Müdürlüğü  23.10.2022  06:06

Cumhuriyet Parkı Yapımı

Load Time (S) : 0.154758